Palma Apartment
Lisboa, Portugal

Client
Private
Status
Built
Project date
2010-2011
Construction date
2011
Construction area
180m2
Photography




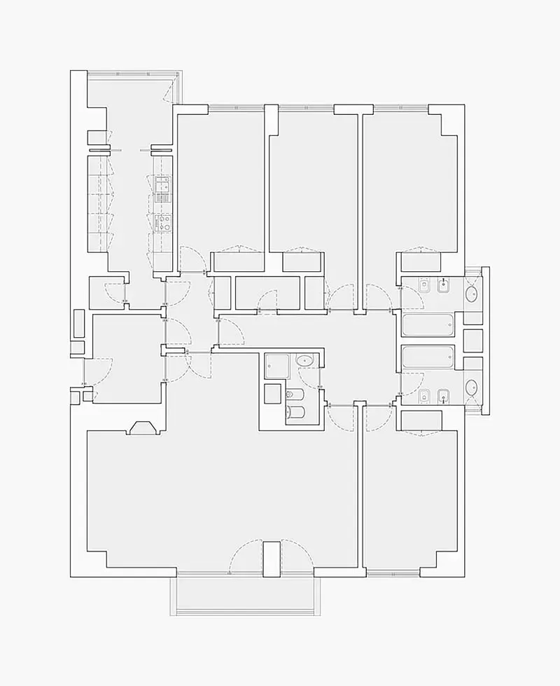
Located in Lisbon, the Palma Apartments main objective was the total restructuring of the existing space to create a new proposal for a living space that was more fluid and more adequate to our clients’ lifestyle. The existing apartment was based on a common typology of the 80’s, where the spatial arrangement was based on partitioning the space. The original entrance opened into an entrance hall, this hall was followed by separate distribution areas, for social, intimate and service. From this central distribution space, the various domestic activities were divided separately.
The proposal involves the fusion of some of these different areas in order to create a new domestic experience that is natural, more spontaneous and less formal. A large social central space was created where everything happens. With this principle, the house was opened from one end to the other in a large space that joins the service space with the social space and the entrance area of the apartment.


In contrast to this spatial openness is a dynamic set of sliding doors that are hidden and, when closed, adjust the public and private domains of activities according to the clients’ needs.
Through the existence of these sliding walls, support is provided to the usual daily household changes in the experiences of the contemporary user.



To reinforce the existence of the large common space, the fireplace is placed strategically as a unifying core of the living space, visually perceptible throughout its entirety.

The entire area of the bedrooms has a relatively conventional segmentation that protects domestic intimacy from the rest of its inhabitants.
The proposed Palma Apartment conveys experiential spatial fluidity and spontaneity that are important for the inhabitant of today. Thus, domestic activities merge with leisurely living in a continuous form exempt of social ties.




Renovating apartments in Lisbon's historic neighbourhoods demands a delicate balance between preserving the character of the existing structure and introducing contemporary spatial qualities that serve modern living.
The Palma Apartment renovation involved rethinking 180 square metres within a traditional Lisbon building, optimizing the layout for natural light penetration and spatial fluidity while respecting the structural constraints of the original construction. Material selections were guided by a desire to create visual warmth and tactile richness, with careful attention to the transition between social and private zones. The result is a residence that feels both contemporary and rooted in its context - a home that acknowledges its heritage without being constrained by it.
Have a project in mind? Contact us
